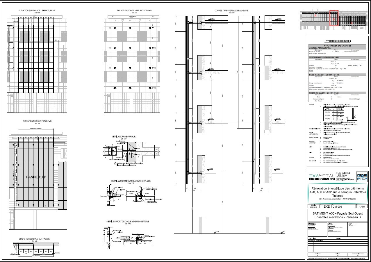
Pour cette opération, Exametal a réalisé une étude de façades métalliques sur les bâtiments A28 & A30 du Campus Peixotto :
PROJET GÉNÉRAL : Mise en œuvre de façades décoratives en vêture des façades existantes
MAÎTRE D'OUVRAGE : Université de Bordeaux
VILLE - DEPT : Talence (33)
PARTENAIRES : La Forge
ANNÉE : 2022
Le site www.exametal.fr est la propriété de la société François-Xavier GUILLARD – SAS – immatriculée 849373535
Siège social : 16 Boulevard Joliot Curie 44200 NANTES
Directeur de la publication : François-Xavier GUILLARD
Conception / Réalisation / Webmastering / Hébergement :
PMP CONCEPT
2, Place Henry Nigay
69220 Belleville-en-Beaujolais
1. François-Xavier GUILLARD n’autorise la visualisation du présent site qu’à titre personnel et professionnel. Toute copie des informations contenues dans ce site ne peut être faite qu’à titre d’information et est strictement réservée à un usage privé au sens de l’article L 122-5 2° du Code de la Propriété Intellectuelle. Toute autre utilisation ou reproduction non expressément visée aux présentes est interdite.
2. La création d’un lien hypertexte sur le présent site est autorisée uniquement vers l’adresse de la page d’accueil du site : www.exametal.fr à l’exclusion de toute autre adresse.
3. Les informations contenues dans ce site ne sont pas exhaustives et vous sont données à titre indicatif. Malgré les efforts de François-Xavier GUILLARD, elles peuvent être partielles, périmées ou comporter des inexactitudes. François-Xavier GUILLARD ne vous garantit pas l’exactitude, l’exhaustivité, l’adéquation ou le fonctionnement du présent site ou de l’information qu’il contient. Les photos sont données à titre non contractuel.
4. François-Xavier GUILLARD n’assume aucune responsabilité relative aux informations contenues dans le présent site. Elle décline toute responsabilité découlant notamment de toute erreur et/ou omission pouvant résulter de tout dommage direct ou indirect lié au crédit que vous accordez à ces informations, à l’utilisation que vous pourriez en faire et à toute décision que vous seriez susceptibles de prendre en conséquence.
5. François-Xavier GUILLARD n’assume aucune obligation de mise à jour ou de correction des informations disponibles sur ce site et se réserve le droit d’en modifier le contenu à tout moment et sans préavis.
6. En utilisant le présent site vous acceptez les conditions d’utilisation précitées et vous vous engagez à les respecter.
Les meilleurs efforts sont fournis pour maintenir l’accès au site. Cependant, l’accès au site peut être interrompu temporairement ou définitivement, notamment pour des raisons juridiques, techniques ou de maintenance. Aucune indemnité ne peut être octroyée par François-Xavier GUILLARD ou PMP CONCEPT au titre d’une indisponibilité du site, qu’elle soit temporaire ou définitive.
Il appartient au client d’utiliser tous les moyens de sécurité dont il dispose pour préserver la confidentialité des informations échangées. François-Xavier GUILLARD ne saurait être tenue pour responsable des conséquences de la divulgation, même involontaire, des informations échangées ou la non utilisation par le client des moyens de sécurité.
L’internaute reconnaît que l’utilisation du site est régie par la loi française et relève de la compétence des juges français.
Les informations susceptibles d’être collectées sur le présent site sont destinées à la demande d’information. Conformément aux articles 35 et suivants de la loi informatique et libertés (6 janvier 1978), vous disposez d’un droit d’accès, de communication, de rectification et de suppression des données collectées qui vous concernent. Vous pouvez exercer ce droit en écrivant à l’adresse suivante : www.exametal.fr.
Ce site recueille des données personnelles de ses utilisateurs et se conforme aux législations en vigueur (loi du 21 Juin 2014 pour la confiance dans l’Economie Numérique, Loi Informatique et Liberté du 06 Août 2004 et Règlement Général sur la Protection des Données – RGPD : n° 2016-679).
Données personnelles collectées aux fins suivantes :
Données analytiques : Google Analytics avec des données IP personnelles anonymes : cookies et données d’utilisation du site.
Formulaire(s) : Données personnelles collectées dans un but de gestion administrative et commerciale : Nom, prénom, téléphone, e-mail, sujet, message.
Les destinataires des données personnelles sont les associés, salariés de François-Xavier GUILLARD et ses partenaires techniques.
La durée de conservation des données personnelles est fixée comme suit : S’il existe une relation commerciale, les données personnelles sont conservées de manière active durant toute la durée de cette relation et pour une durée de 10 ans après cette relation. S’il n’existe pas de relation commerciale, les données seront supprimées dans un délai de 2 ans à compter de la collecte des données.
L’utilisateur peut exercer son droit d’accès aux données le concernant, de rectification, d’effacement, demander une limitation du traitement, s’y opposer ou en demander la portabilité en contactant le responsable du traitement des données par mail : j.guesnon@quarco.fr.
Les marques, logos et plus généralement tous les éléments de propriété intellectuelle sont la propriété de leur auteur, sont déposées et protégées à ce titre. Toute utilisation ou reproduction est interdite. Par ailleurs, les informations contenues sur ce site doivent être utilisées à des fins strictement personnelles. Toute utilisation, reproduction, copie, diffusion à des fins commerciales est interdite.
François-Xavier GUILLARD, Font Awesome, Google Fonts
Ce site web utilise des cookies. Les cookies nous permettent de personnaliser le contenu et les annonces, d’offrir des fonctionnalités relatives aux médias sociaux et d’analyser notre trafic. Nous partageons également des informations sur l’utilisation de notre site avec nos partenaires de médias sociaux, de publicité et d’analyse, qui peuvent combiner celles-ci avec d’autres informations que vous leur avez fournies ou qu’ils ont collectées lors de votre utilisation de leurs services.
Les cookies sont des petits fichiers textes qui peuvent être utilisés par les sites web pour rendre l’expérience utilisateur plus efficace.
La loi stipule que nous ne pouvons stocker des cookies sur votre appareil que s’ils sont strictement nécessaires au fonctionnement de ce site. Pour tous les autres types de cookies, nous avons besoin de votre permission.
Ce site utilise différents types de cookies. Certains cookies sont placés par les services tiers qui apparaissent sur nos pages.
À tout moment, vous pouvez modifier ou retirer votre consentement dès la Déclaration relative aux cookies sur notre site web.
En savoir plus sur qui nous sommes, comment vous pouvez nous contacter et comment nous traitons les données personnelles veuillez voir notre Politique confidentialité.
Veuillez indiquer l’identifiant de votre consentement et la date à laquelle vous nous avez contactés concernant votre consentement.
Votre consentement s’applique aux domaines suivants : exametal.fr
| Cookie | Durée | Description |
|---|---|---|
| _lscache_vary | 2 days | No description available. |
| cookielawinfo-checkbox-analytics | 11 months | Ce cookie est défini par le plugin GDPR Cookie Consent. Le cookie est utilisé pour stocker le consentement de l'utilisateur pour les cookies dans la catégorie "Analytics". |
| cookielawinfo-checkbox-autres | 1 year | Set by the GDPR Cookie Consent plugin plugin to store the user consent for cookies in the category "Others". |
| cookielawinfo-checkbox-fonctionnel | 1 year | Set by the GDPR Cookie Consent plugin, this cookie is used to store the user consent for cookies in the category "Functional". |
| cookielawinfo-checkbox-functional | 11 months | Le cookie est défini par GDPR cookie consent pour enregistrer le consentement de l'utilisateur pour les cookies dans la catégorie "Fonctionnel". |
| cookielawinfo-checkbox-necessary | 11 months | Ce cookie est défini par le plugin GDPR Cookie Consent. Les cookies sont utilisés pour stocker le consentement de l'utilisateur pour les cookies dans la catégorie "Nécessaire". |
| cookielawinfo-checkbox-others | 11 months | Ce cookie est défini par le plugin GDPR Cookie Consent. Le cookie est utilisé pour stocker le consentement de l'utilisateur pour les cookies dans la catégorie "Autre. |
| cookielawinfo-checkbox-performance | 11 months | Ce cookie est défini par le plugin GDPR Cookie Consent. Le cookie est utilisé pour stocker le consentement de l'utilisateur pour les cookies dans la catégorie "Performance". |
| cookielawinfo-checkbox-publicite | 1 year | Set by the GDPR Cookie Consent plugin, this cookie is used to store the user consent for cookies in the category "Advertising". |
| CookieLawInfoConsent | 1 year | Records the default button state of the corresponding category & the status of CCPA. It works only in coordination with the primary cookie. |
| elementor | never | This cookie is used by the website's WordPress theme. It allows the website owner to implement or change the website's content in real-time. |
| NID | 6 months | NID cookie, set by Google, is used for advertising purposes; to limit the number of times the user sees an ad, to mute unwanted ads, and to measure the effectiveness of ads. |
| viewed_cookie_policy | 11 months | Le cookie est défini par le plugin GDPR Cookie Consent et est utilisé pour stocker si l'utilisateur a consenti ou non à l'utilisation de cookies. Il ne stocke aucune donnée personnelle. |
| Cookie | Durée | Description |
|---|---|---|
| cookielawinfo-checkbox-functional | 11 months | Le cookie est défini par GDPR cookie consent pour enregistrer le consentement de l'utilisateur pour les cookies dans la catégorie "Fonctionnel". |
| Cookie | Durée | Description |
|---|---|---|
| cookielawinfo-checkbox-performance | 11 months | Ce cookie est défini par le plugin GDPR Cookie Consent. Le cookie est utilisé pour stocker le consentement de l'utilisateur pour les cookies dans la catégorie "Performance". |
| Cookie | Durée | Description |
|---|---|---|
| cookielawinfo-checkbox-analytics | 11 months | Ce cookie est défini par le plugin GDPR Cookie Consent. Le cookie est utilisé pour stocker le consentement de l'utilisateur pour les cookies dans la catégorie "Analytics". |
| Cookie | Durée | Description |
|---|---|---|
| NID | 6 months | NID cookie, set by Google, is used for advertising purposes; to limit the number of times the user sees an ad, to mute unwanted ads, and to measure the effectiveness of ads. |
| Cookie | Durée | Description |
|---|---|---|
| _lscache_vary | 2 days | No description available. |
| cookielawinfo-checkbox-others | 11 months | Ce cookie est défini par le plugin GDPR Cookie Consent. Le cookie est utilisé pour stocker le consentement de l'utilisateur pour les cookies dans la catégorie "Autre. |
| Cookie | Durée | Description |
|---|---|---|
| cookielawinfo-checkbox-autres | 1 year | Set by the GDPR Cookie Consent plugin plugin to store the user consent for cookies in the category "Others". |
| cookielawinfo-checkbox-fonctionnel | 1 year | Set by the GDPR Cookie Consent plugin, this cookie is used to store the user consent for cookies in the category "Functional". |
| cookielawinfo-checkbox-necessary | 11 months | Ce cookie est défini par le plugin GDPR Cookie Consent. Les cookies sont utilisés pour stocker le consentement de l'utilisateur pour les cookies dans la catégorie "Nécessaire". |
| cookielawinfo-checkbox-publicite | 1 year | Set by the GDPR Cookie Consent plugin, this cookie is used to store the user consent for cookies in the category "Advertising". |
| CookieLawInfoConsent | 1 year | Records the default button state of the corresponding category & the status of CCPA. It works only in coordination with the primary cookie. |
| elementor | never | This cookie is used by the website's WordPress theme. It allows the website owner to implement or change the website's content in real-time. |
| viewed_cookie_policy | 11 months | Le cookie est défini par le plugin GDPR Cookie Consent et est utilisé pour stocker si l'utilisateur a consenti ou non à l'utilisation de cookies. Il ne stocke aucune donnée personnelle. |